BLICKFÄNGER
Am Hang gelegen, mit weitem Blick über die Taunushügel, entsteht derzeit ein Haus, das in vielerlei Hinsicht besonders ist:
Eine Neuinterpretation eines 1960er-Jahre-Bestands – neu gedacht, neu geformt. „Blickfänger“ verbindet spektakuläre Raumblicke, klare Linien und modernste Plusenergietechnik zu einem Zuhause, das in jeder Hinsicht überzeugt.
PROJEKTIDEE
ecomfort hat dieses Objekt bewusst ausgewählt – wegen seiner besonderen Lage, der massiven Bausubstanz und des darin steckenden Potenzials. Das bestehende Gebäude aus dem Jahr 1968 bietet die perfekte Grundlage, um das bewährte ecomfort-Konzept ideal umzusetzen.
„Blickfänger“ ist kein Neubau, sondern ein Statement:
Eine echte ecomfort Plus-Energie-Villa die Architektur, Energie und Wohnkomfort in Einklang bringt.
Ziel ist es, das Maximum an Wohnqualität zu erreichen – nicht nur ökologisch, sondern auch architektonisch. Dafür entsteht ein präzise integrierter Anbau, der im Gartengeschoss den Indoorpool ermöglicht und im Erdgeschoss weiter in den großen, grünen Garten hineinrückt. Dieses neue Volumen wirkt architektonisch wie ein Fernrohr in die Landschaft. Es öffnet den Blick, fängt Licht und Natur ein und macht die Villa auch optisch zu einem Unikat.
ARCHITEKTUR & LAGE
Das Grundstück liegt eingebettet in Hanglage, ruhig und von altem Baumbestand umgeben. Diese Topografie wird konsequent genutzt.
Straßenseitig wirkt das Haus zurückhaltend – gartenseitig hingegen großzügig und offen, mit weiten Blickachsen und fließenden Übergängen zwischen Innen und Außen.
Hier entfalten sich die eigentlichen Qualitäten der gewünschten Architektursprache und vereinen ihr fast gegensätzliches Credo: transparent + doch maximal
privat einfach, reduziert + dennoch sehr individuell
So öffnet sich allein im Küchen- und Essbereich des Hauptgeschosses eine über eine acht Meter breite Fensterfront, mit freier Sicht zu den gegenüberliegenden Taunushügeln.
Talseitig besitzt das Gebäude zahlreiche weitere großzügige, überwiegend raumhohe Fensterflächen, die alle Zimmer mit Licht durchfluten, sowie gleichzeitig die Natur in das Haus holen.
Das alte Walmdach wird vollständig abgetragen. Stattdessen entsteht ein Flachdach mit Attika und Dachüberständen. Diese sorgen für eine natürliche Verschattung, während außenliegende Raffstores den Lichteinfall flexibel regulieren. Aluminiumfenster mit minimal sichtbaren Rahmen betonen die Präzision der Architektur. Sie holen Licht und Landschaft ins Haus und lasse den Übergang zur Natur nahezu verschwinden.
privat einfach, reduziert + dennoch sehr individuell
PROJEKTDATEN AUF EINEN BLICK
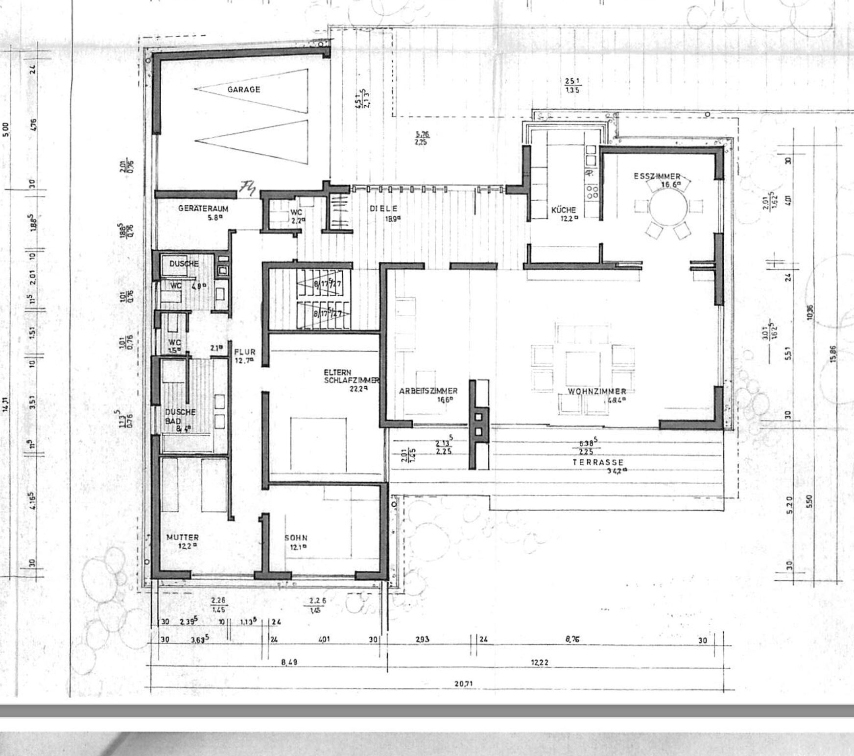
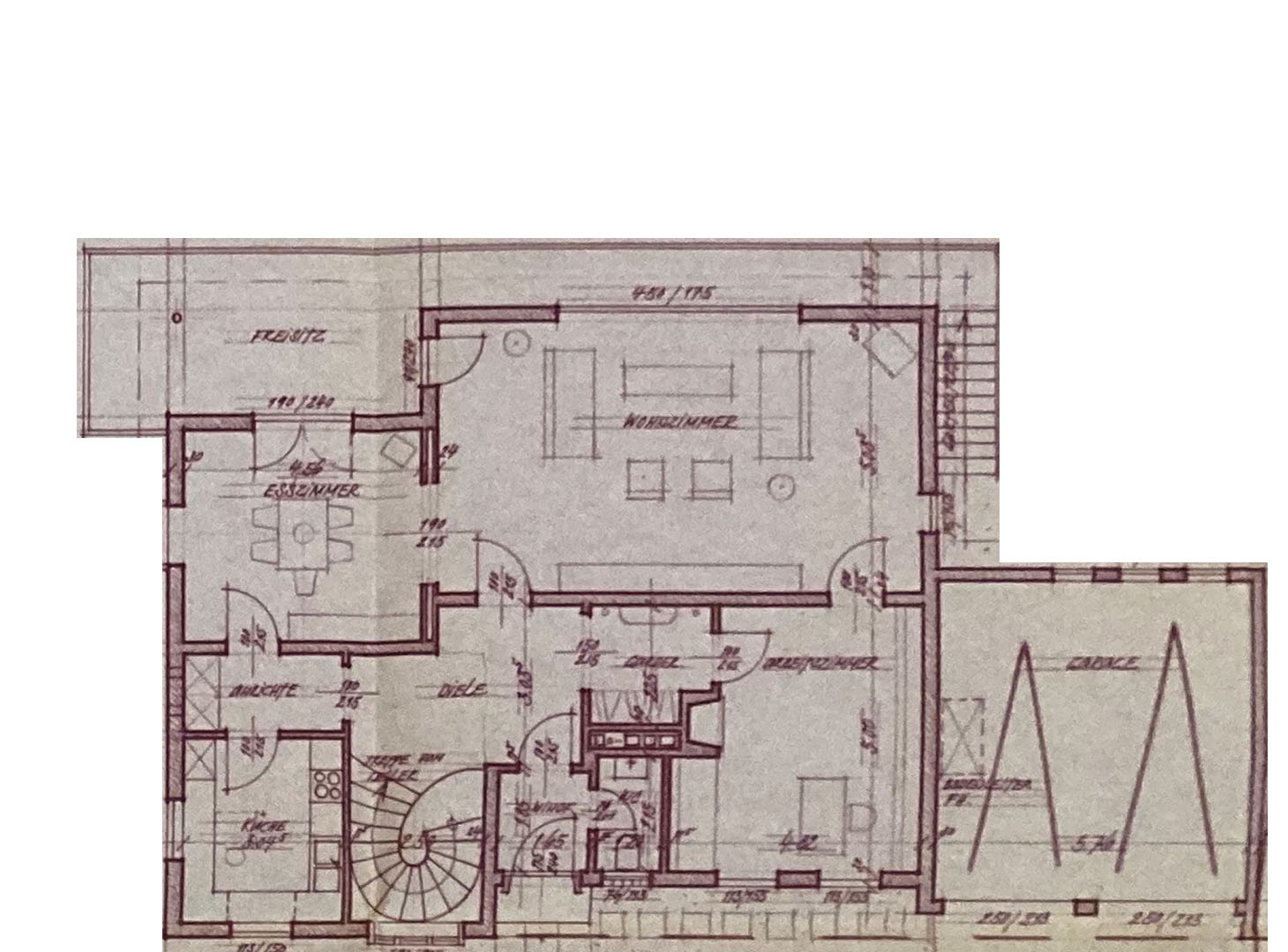
RAUMKONZEPT
Der Grundriss wurde von Grund auf neu gedacht.
Das Treppenhaus wurde verlegt, um Raumflüsse zu öffnen und Sichtachsen zu schaffen. Heute reicht der Blick direkt vom Eingang über Küche und Essbereich hinaus in den Garten und die Landschaft.
Im oberen Geschoss entstehen repräsentative, lichtdurchflutete Wohn- und Lebensräume.
Das Gartengeschoss öffnet sich ebenerdig zum Garten: Hier entsteht zusätzlich ein besonderer Indoorpool, der sich energieeffizient und chemiefrei betreiben lässt.
Das gesamte Haus ist so angelegt, dass sich die Stimmung im Tagesverlauf verändert. Immer gleich, und doch immer anders, je nach Licht und Blickrichtung.


ENERGIE & TECHNIK
„Blickfänger“ wird als vollwertige ecomfort Plus-Energie-Villa realisiert.
Hierzu haben wir im Team mit Experten, das ecomfort-spezifische Energiekonzept erarbeitet. In diesem wird jede Komponente, wie die Zahnräder in einem Uhrwerk, genauestens aufeinander abgestimmt. Somit die dauerhafte Funktion + die maximale Energieersparnis sichergestellt!
Eine innenaufgestellte Luft-Wärmepumpe in Kombination mit einer großflächigen Fußbodenheizung, und den anderen Maßnahmen der energetischen Sanierung sorgen für effiziente Temperierung und Warmwasserversorgung.
Die ca. 45 kWp Photovoltaikanlage, „versteckt“ auf dem Flachdach, wird mehr Energie erzeugen, als das Haus verbraucht.
Viel Wert haben wir in diesem Fall ebenfalls auf die Auswahl des passenden Poolsystems gelegt – nicht nur als luxuriöses Extra, sondern als Teil des energetischen Gesamtkonzepts.
Von Anfang an lag der Fokus darauf, ein System zu finden, das dauerhaft effizient, ressourcenschonend und nahezu wartungsfrei arbeitet.
Der Pool funktioniert als Naturpool, vollständig ohne Chlor oder chemische Zusätze. Ein fest installierter biologischer Naturfilter reinigt das Wasser kontinuierlich und sorgt für eine natürliche, haut- und umweltfreundliche Wasserqualität.
Beheizt wird der Pool über die hausinterne Luft-Wärmepumpe – integriert in das Energiesystem der gesamten Villa. Der Wasserverbrauch bleibt dank des geschlossenen Kreislaufs gering, die Technik arbeitet leise und unsichtbar.
Das Ergebnis ist ein Pool, der ebenso klar und reduziert ist wie die Architektur selbst:
angenehm temperiert, natürlich sauber und energetisch vorbildlich.
angenehm temperiert, natürlich sauber und energetisch vorbildlich.
INTERIEUR & GESTALTUNG
Die Gestaltung des Innenraums folgt denselben Prinzipien wie die Architektur: Klarheit, Ruhe und Dauerhaftigkeit. Alle Materialien und Details sind aufeinander abgestimmt und schaffen eine durchgehende gestalterische Linie im gesamten Haus.
Raum & Licht:
Großzügige Fensterflächen und zahlreiche Schiebetüren lassen Tageslicht tief in die Räume fluten. Wo es möglich und sinnvoll ist, werden bodentiefe und deckenhohe Elemente eingesetzt. Außen sorgen Raffstores mit Z-Lammellen und Screens für präzise Lichtsteuerung und sommerlichen Wärmeschutz.
Boden & Materialität:
Im gesamten Haus werden diesselben Bodenbeläge verlegt – großformatige 120 × 120 cm Feinsteinzeugfliesen in einem hellen, weiß-beigen Beton-Travertin-Look. Die Terrassen greifen dieses Material mit ebenfalls 120 × 120 cm Außenfliesen auf, wodurch ein fließender Übergang zwischen Innen und Außen entsteht.

Decken & Lichtkonzept:
Abgehängte Decken mit integrierten LED-Lichtleisten strukturieren die Räume subtil. Indirekte Beleuchtung in Lichtvouten und präzise platzierte Einbauleuchten schaffen Atmosphäre ohne sichtbare Lichtquellen.
Türen & Details:
Im gesamten Haus raumhohe Zimmertüren und z.T. Glasdeck-Tapetentüren, bündig in Wandflächen integriert und invers öffnend, betonen die ruhige Linienführung. Das Schalterprogramm wurde bewusst schlicht gewählt – kein KNX, keine übertechnisierte Steuerung. Der Fokus liegt auf Funktion, Haptik und Langlebigkeit statt auf Spielereien.
So entsteht ein Zuhause, das nicht nur architektonisch, sondern auch technisch ausgefeilt ist –
ein Gebäude, das mehr Energie produziert, als es verbraucht.
Wo Architektur, Licht und Energie zu einem Ganzen werden.
ein Gebäude, das mehr Energie produziert, als es verbraucht.
REFERENZ / SANIERUNGSBEISPIEL
„Blickfänger“ steht nicht allein, sondern auf einem starken Fundament.
Bereits mit unserem ersten Plusenergiehaus – dem ecomfort Projekt Sonnennfänger – konnten wir zeigen, dass sich Architektur, Energie und Komfort dauerhaft vereinen lassen.
Dieses Haus liefert seit über zehn Jahren nachweislich Energieüberschüsse, ohne Systemausfälle, ohne Nachbesserungen – ein reales Beispiel dafür, wie verlässlich und effizient das ecomfort-Prinzip funktioniert.
Bereits mit unserem ersten Plusenergiehaus – dem ecomfort Projekt Sonnennfänger – konnten wir zeigen, dass sich Architektur, Energie und Komfort dauerhaft vereinen lassen.

